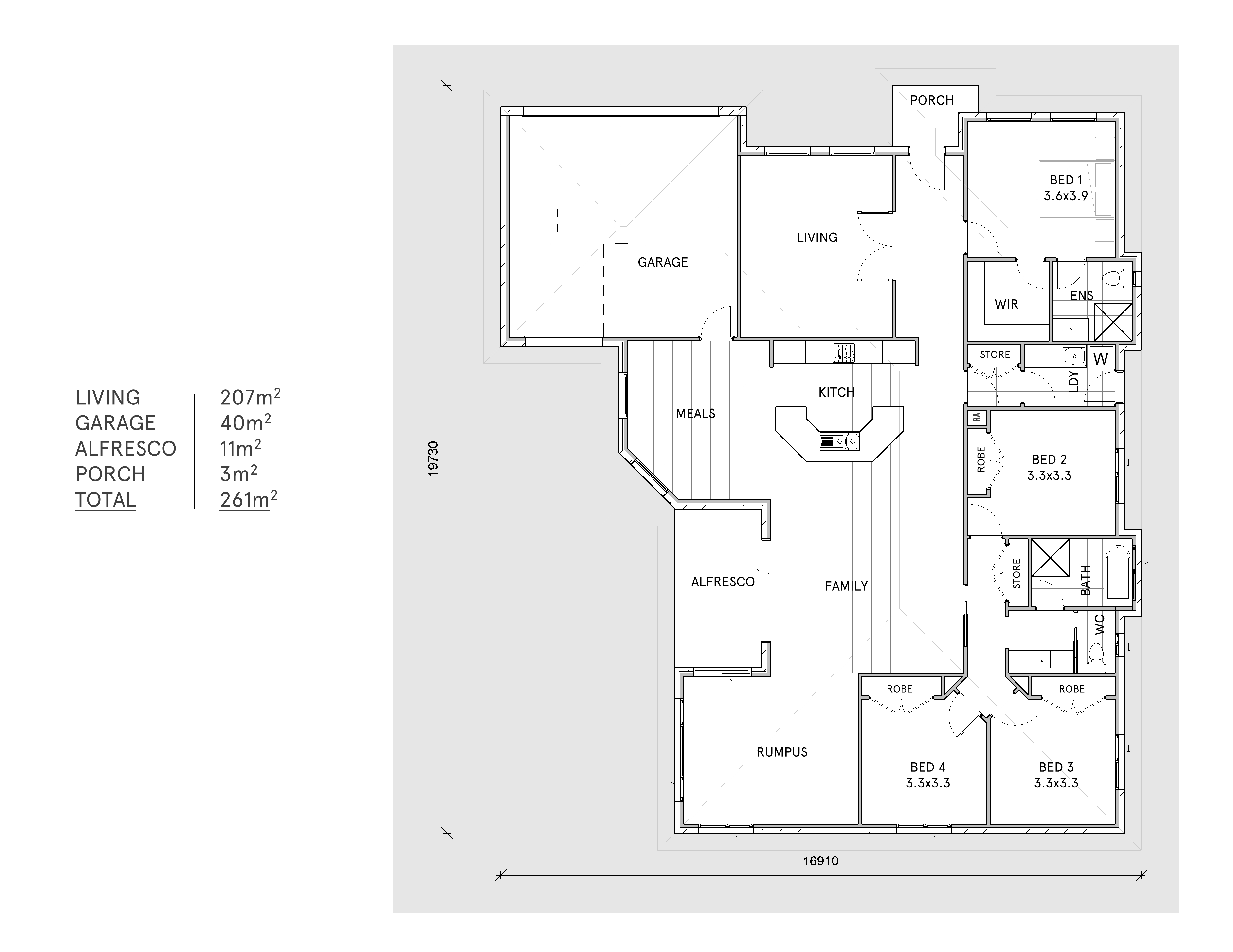
‹ Previous Next › General Tab Group Overview Contemporary 4 bedroom with spacious rumpus room Enquire Now 4 2 2 Brochure: 2019_Chisago 27.pdf Plan Detail